Lumina Grand EC @ Bukit Batok
Lumina Grand EC (昱丰嘉园)
Lumina Grand EC is located at Bukit Batok West Ave 5 is within 1 km to Anglo-Chinese School (Primary) 英华小学 by 2030. The school in Tengah will be located together with a new special education (Sped) school for pupils with autism spectrum disorder who can access the national curriculum. The Sped school will be run by Methodist Welfare Services in partnership with ACS.
Lumina Grand (昱丰嘉园) - an upcoming Executive Condominium in Bukit Batok. Tucked in the heart of Bukit Batok Town, District 23 of Singapore. Convenience and greenery all within reach with parks and many amenities surrounding this project developed by CDL Zenith Pte Ltd.
Updated on 07 Mar 2026
Estimate TOP 2Q 2026
*Bounce-Out Unit*
SOLD
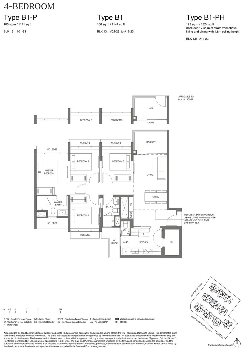
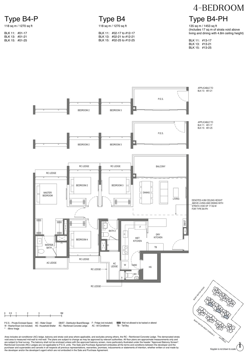
#09-17 4-Bedroom
Type B4 (118 Sqm / 1270 Sqft)
Price: $2,032,000 ( $1600 psf)
Please call Cindy Ng @ 9773 8372
or Eric Tan (陈成稳) @ 9788 1579
Meet us now to check your Eligibility & Affordability
立即与我们联系以检查您的资格和负担能力
We are Developer's Sale Team
Fully Sold on 18 Jul 2025
Total Units Sold 512/512 (100%)
TOP Soon 2Q 2026
Units Sold
#02-10, #02-16, #03-16, #12-01
#02-14, #02-11, #02-09
#01-12, #01-31, #02-31
Lumina Grand Site Plan & Facilities
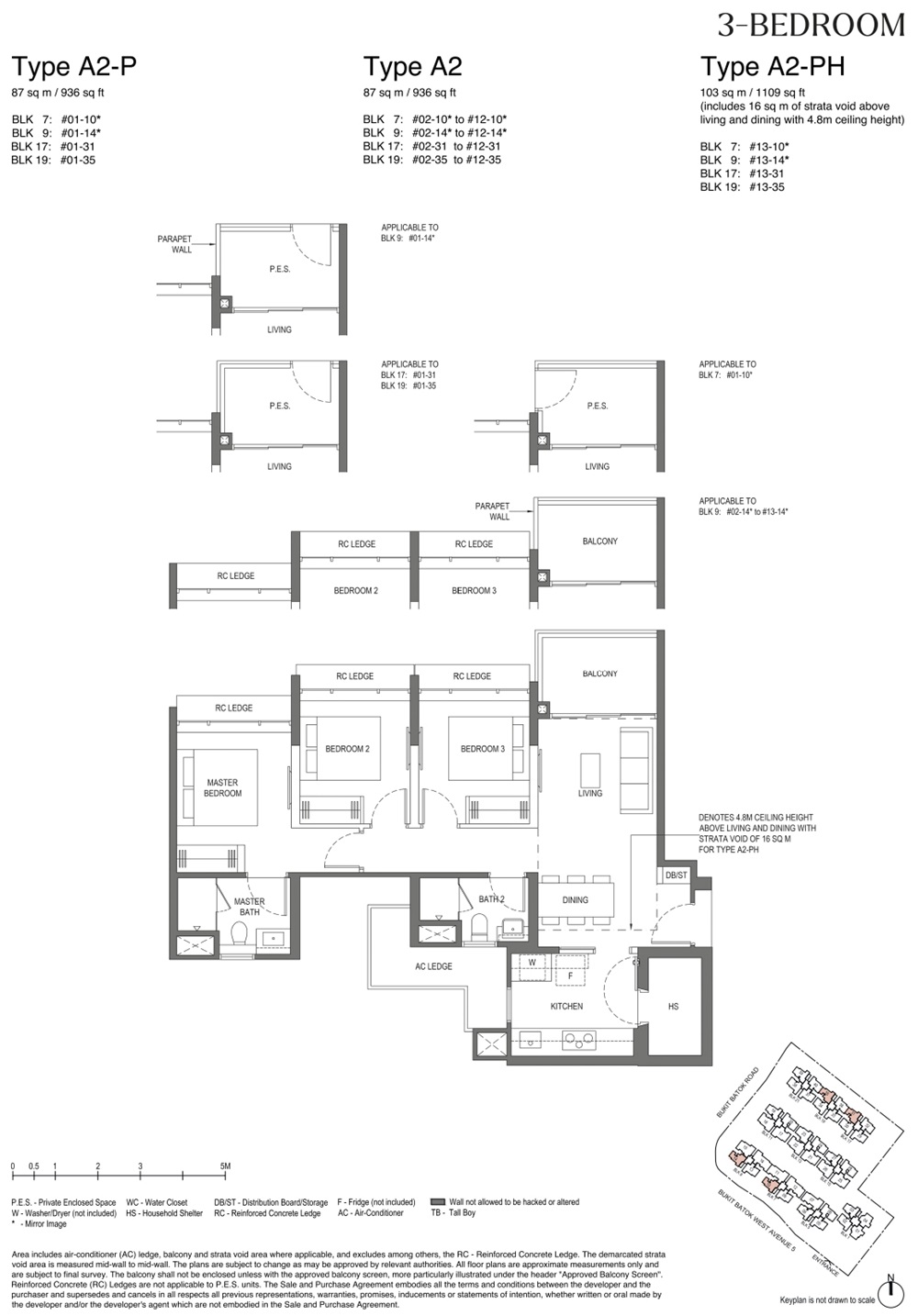
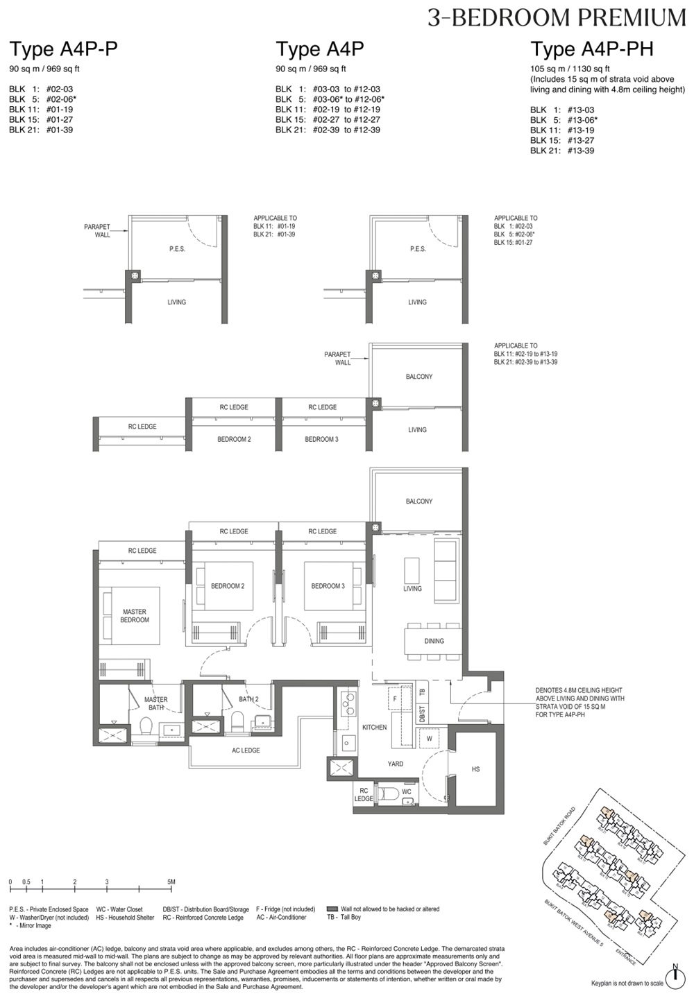
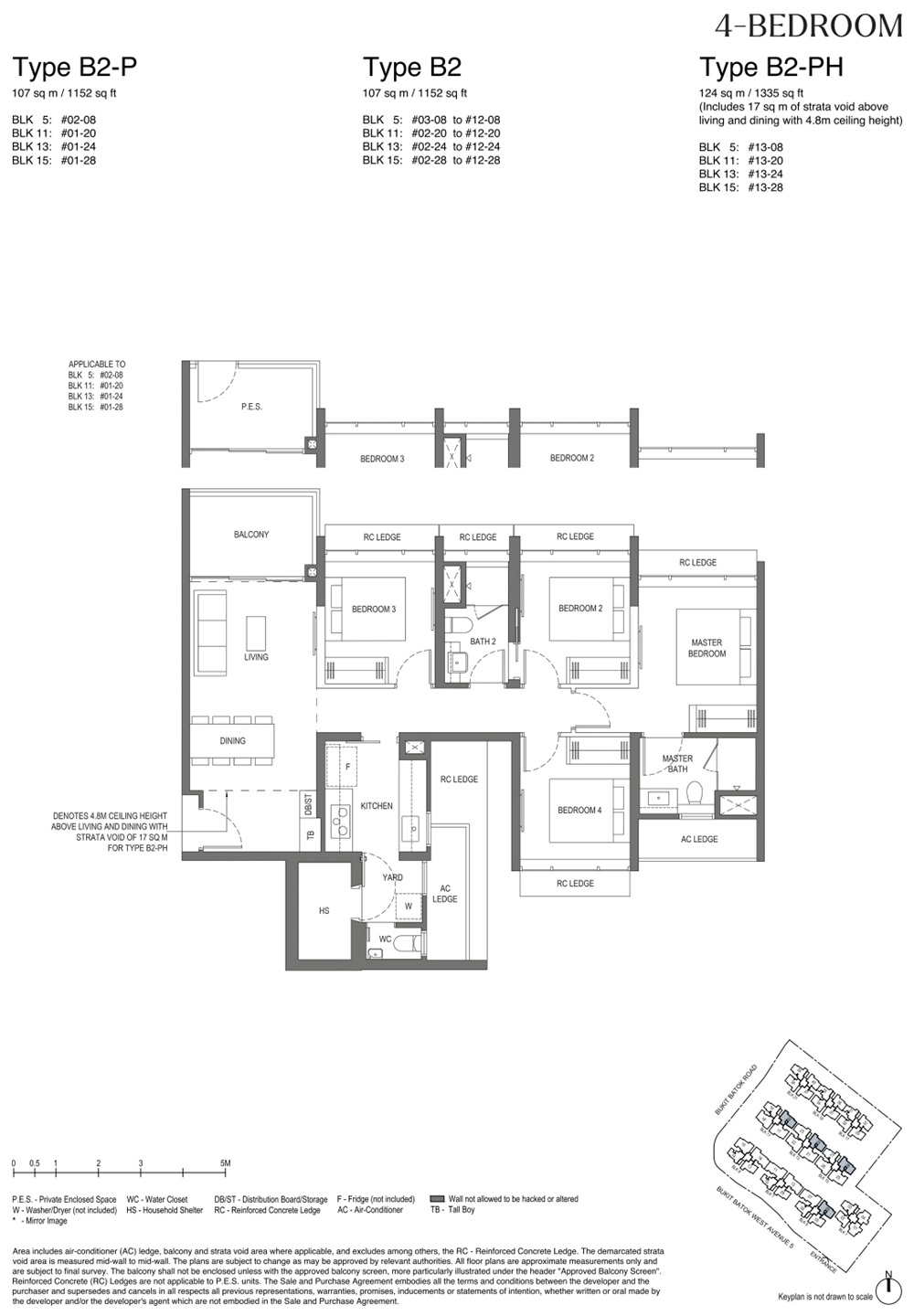
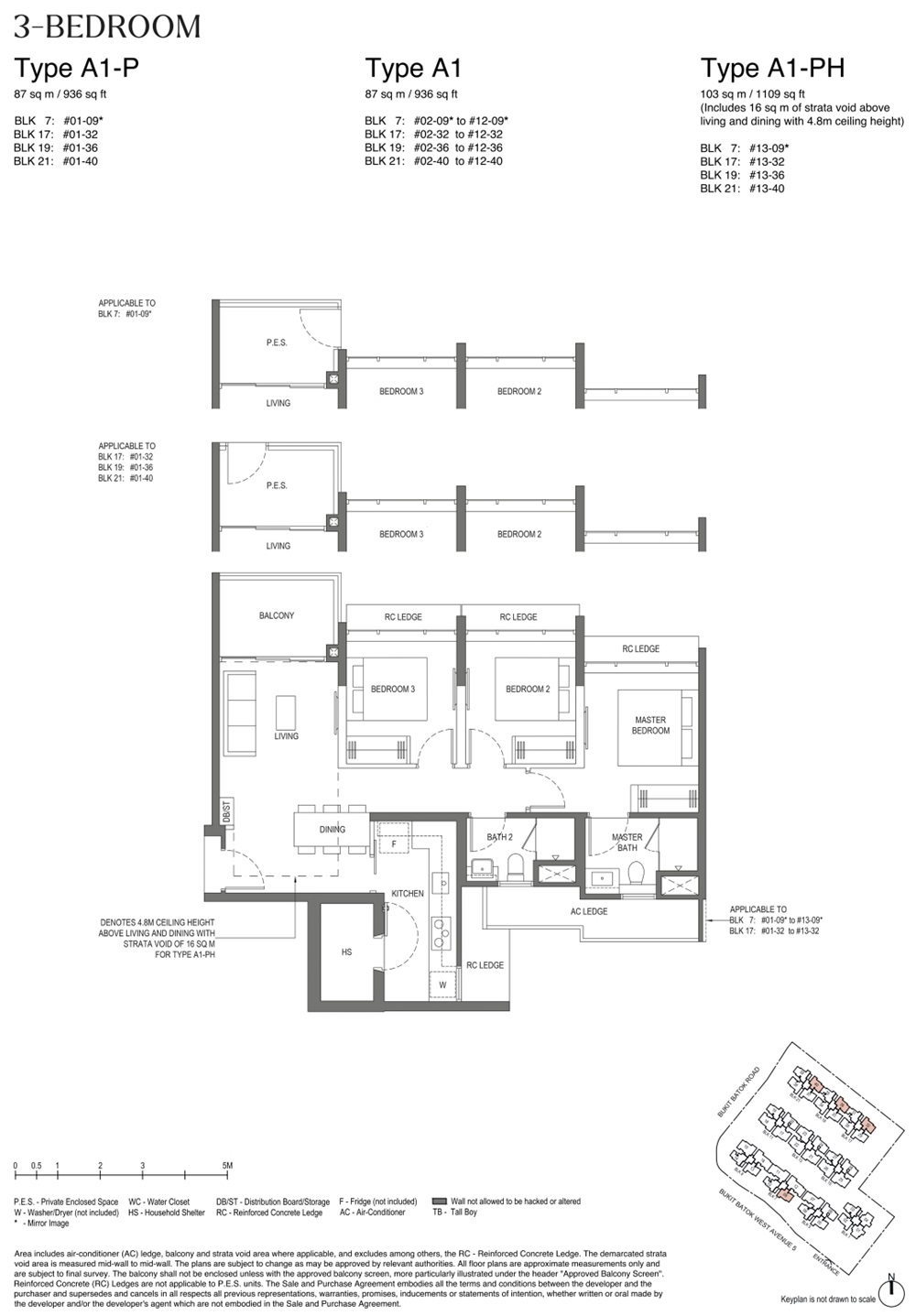
Lumina Grand Floor Plan
Lumina Grand Units Type
(Balance Units)
| Type | Sold | Available | Total |
| 3 Bedroom | 104 | 0 | 104 |
| 3 BR Premium | 202 | 0 | 202 |
| 4 Bedroom | 155 | 0 | 155 |
| 5 Bedroom | 51 | 0 | 51 |
TOP10 UNIQUE SELLING POINTS
- Developed by Singapore's most trusted developer with 60 years of proven track record
- Located in the heart of the established Bukit Batok West neighbourhood
- Minutes drive to 2 major business hubs Jurong Innovation District and Jurong Lake District, as well as the upcoming Tengah Town
- Conveniently access to three MRT stations - Bukit Gombak MRT station, upcoming Tengah Plantation and Tengah Park MRT stations (estimated completion in 2028)
- Near to good schools {future Anglo-Chinese School (Primary), future Bukit View Primary School, Dazhong Primary School, St. Anthony's Primary School}
- Close proximity to Le Quest Mall, West Mall, Westgate and Bukit Batok West Shopping Centre
- Units are designed to minimise direct west facing orientation and come with Smart kitchen appliances from Küche and quality sanitary wares and fittings from Rigel and Hansgrohe.
- Rare EC with high ceiling
- Incorporate the use of efficient renewable energy technology such as solar photovoltaic panels at roof tops, providing partial energy replacement for day-to-day operations at some parts of the common areas.
- BCA Green Mark Platinum Super Low Energy Award
Lumina Grand E-Brochure
Lumina Grand E-Application Form
After meeting us you will know
- Your Eligibility-
-Process of buying EC-
-EC Financial Calculation-
-Payment Scheme (NPS & DPS)-
-How much Cash & CPF required-
-Your Home Loan & Bridging Loan-
-CPF Housing Grant & Resale Levy-
Lumina Grand Showflat Viewing
(Showflat Open for Viewing from 28 Jan 2024)
Lumina Grand Developer
City Developments Limited (CDL) is a leading global real estate company with a network spanning 104 locations in 29 countries and regions.
Listed on the Singapore Exchange, the Group is one of the largest companies by market capitalisation. Its income-stable and geographically diverse portfolio comprises residences, offices, hotels, serviced apartments, retail malls and integrated developments.
With a proven track record of over 55 years in real estate development, investment and management, the Group has developed over 48,000 homes and owns around 23 million square feet of gross floor area in residential for lease, commercial and hospitality assets globally. Its diversified global landbank offers 3.3 million square feet of land area.

























